IMAGE INFORMATION
Back
Select Category
Interior Design
Exterior Design
Landscape Design
Floorplan
3D Floorplan
Architectural Drawings
Walkthrough
Engineering Drawings
Select Style
Contemporary
Eclectic
Modern
Traditional
Asian
Beach Style
Craftsman
Farmhouse
Industrial
Mediterranean
Midcentury
Rustic
Scandinavian
Southwestern
Transitional
Tropical
Victorian
Triplex Elevation Design
Triplex floor plan
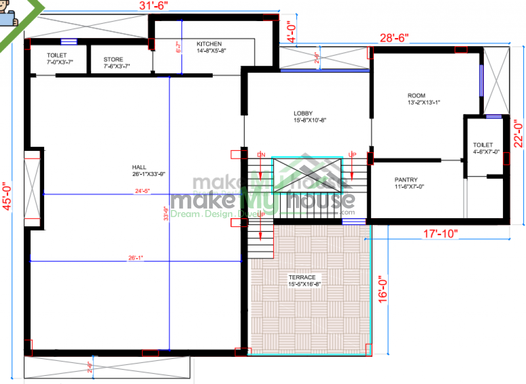
45x60 Floor Plan
45x60 house plan
2700 sqft floor plan
residential floor plan design
3d elevation design
3D elevation designs for villa
3d elevation design for triplex house
2d elevation for residential house
2d elevation designs
Cancel
×